Изграждат Младежки център в Поморие
Сградата ще се намира на ул. „Марица“ (до ДГ „Слънчо“) в кв. „Север“

Сградата ще е в имот с идентификатор 57491.506.525, ограден от трите страни от улици, като от югоизток е ул. „Панайот Волов“, от североизток е ул. „Марица“, а от югозапад е ул. „П.Р. Славейков“.

Проектант в част „Архитектура“ е арх. Валентин Чапразлиев. Конструкцията на сградата е стоманобетонна скелетно-гредова монолитна, с носещи колони, греди и плочи и с тухлени фасадни и преградни зидове. Покривът на високото тяло се предвижда от стоманена конструкция с покривни термопанели с полиуретан. Проектът предвижда фасадите да бъдат изпълнени от фасадна мазилка в три цвята. Прозорците ще се изпълнят от PVC дограма с нискоемисионни стъклопакети.





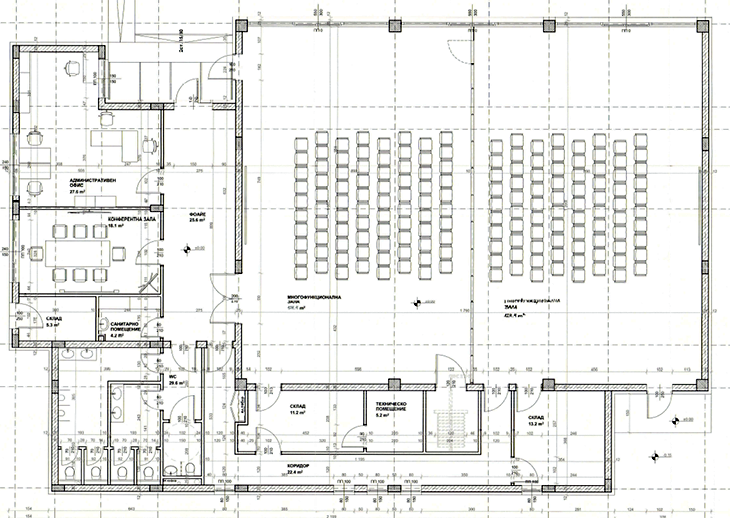
Сградата на Младежкия център ще разполага с две многофунционални зали за 80 човека, които ще бъдат разделени с подвижна преградна стена, която при нужда ще се прибира и ще обединява двете зали в една по-голяма за 160 човека. Ще има и конферентна зала, входно фоайе, административен офис, санитарни помещения и склад. Осигурена е достъпна среда до входа чрез рампа с наклон 5%. Предвидена е и тоалетна за инвалиди към тоалетните за посетители в сградата. Осигурени са и необходимият брой паркоместа. Пешеходният достъп е от североизточната фасада откъм ул. „Марица“.


Проектант в част „Паркоустройство и благоустрояване“ е ланд. арх. Веселина С. Заркова-Веселинова. Предвижда се внасяне на декоративни иглолистни и широколистни дървесни растения, както и храсти и живи плетове. Подбраните растителни видове са предпочетени съобразно екологичните условия на района и изложението на терена. Включени са такива с интересна листна маса или с изявен хабитус, в комбинация с "изчистени" като текстура видове за получаване на балансиран ефект от озеленяването. Храстовите растения, както и дървесните, са разположени в зелени площи. По периферията на терена ще бъдат използвани увивните видове Parthenocissus tricuspidata и Parthenocissus quinquefolia.

Проектът се финансира по Национален план за възстановяване и устойчивост. Изпълнител след обществена поръчка е „Метастрой“.