Направиха първа копка за новия корпус на 5. ОУ "Иван Вазов" в столичния квартал "Павлово"
С изграждането на корпуса с физкултурен салон, столова и топла връзка училището ще премине на едносменен режим на обучение, а капацитетът ще се увеличи с близо 500 нови ученици

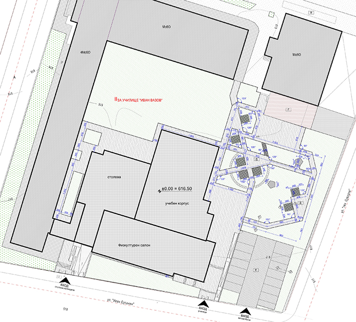
Основната сграда на 5-то ОУ „Иван Вазов” в район "Витоша" на ул. „Симеон Радев“ 31 в имот с идентификатор 68134.1930.467 представлява четириетажна постройка в западната и северната части на имота. Сградата разполага със самостоятелна кухня и лекарски кабинет.

В рамките на имота се намира и двуетажната сграда на читалище „Витоша“. В имота свободно е разположена и едноетажна масивна стопанска постройка, която подлежи на събаряне с настоящия проект. Обособени са зона със спортни площадки с асфалтова настилка и озеленена зона с алеи. Обособена е зона за паркинг, отделена с ограда от останалата част от имота.

Проектант в част „архитектура“ е ADM Studio (АДМ Студио) с водещ проектант арх. Драгомир Николов. Предвижда се изграждането на корпус със застроена площ от 1 497.66 кв. м и РЗП 3 157,62 кв. м, който ще се състои от четири надземни етажа.

В новия корпус ще се помещават физкултурен салон със съблекални, помещение за преподаватели, помощни помещения, тоалетни, столова с разливна кухня, тоалетни и гардероби към нея, топла връзка към съществуващия учебен корпус и петнадесет класни стаи. Пешеходният достъп до новопредвидената сграда пристройка е предвиден чрез изграждане на нови алеи и входове откъм ул. „Иван Сусанин“.

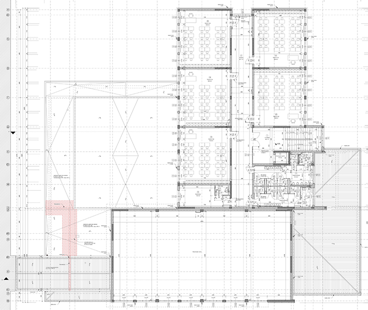
На първия надземен етаж ще е разположен главният вход на новия корпус. На това ниво са предвидени столовата с разливна кухня, тоалетни и гардероби към нея, физкултурен салон със съблекални, стая за преподавател и склад към него, бюфет, учителска стая, технически помещения, стая за персонал, помещение за портиер и други обслужващи помещения. Към физкултурния салон със светла площ от 322.94 кв. м са предвидени съблекални с душове и тоалетни отделни за момичета и момчета, склад за съхранение на инвентар и пособия, учителски/методически кабинет. Физкултурният салон и помощните помещения ще са свързани с външните спортни и детски площадки посредством подход от запад и алея. Предвидена е от топла връзка от съществуващата сграда към столовата посредством стълбище. Столовата е проектирана така, че да се използва и от двата корпуса, без да се смесват потоците на ученици. Предвиден е бюфет със складово помещение към него.
%2C%20%D0%BA%D0%BE%D1%82%D0%B0%20%C2%B10-00_page-0001-730.jpg)
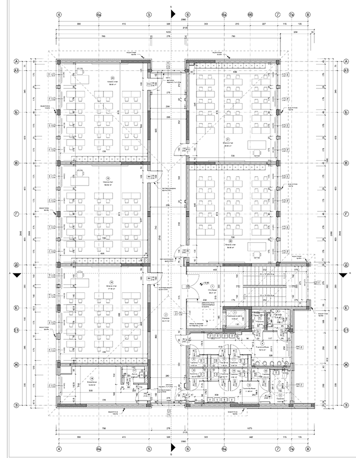
На втория, третия и четвъртия етаж ще са разположени пет класни стаи, хранилище с аусгус, стълбище, коридор и тоалетни, разделени за момчета и момичета. За новата сграда е осигурена достъпна среда за хора с увреждания: външна открита входна рампа, вътрешен асансьор и тоалетни.
%2C%20%D0%BA%D0%BE%D1%82%D0%B0%20%2B3-50_page-0001-730.jpg)
%2C%20%D0%BA%D0%BE%D1%82%D0%B0%20%2B7-20_page-0001-730.jpg)
%2C%20%D0%BA%D0%BE%D1%82%D0%B0%20%2B10-90_page-0001-730.jpg)
Проектант в част „Паркоустройство и благоустройство“ е ланд. арх. Катя Цветкова. Новата сграда ще има отделно оформени площадки с главни и второстепенни алеи в геометричен стил, осъществяващи връзката между площадките. Предвидени са кътове за отдих и места за сядане, беседка, пейки и други. Ще бъде оформена площадка пред откритата сцена на читалището, с възможност за поставяне на столове. Поради вече съществуващи спортни игрища, които са достатъчни за капацитета на училището, не се предвижда изграждане на нови такива.

Съществуващата дървесна растителност се запазва, с изключение на засегнатата от бъдещото застрояване, която ще се премести в границите на имота, се казва в документацията за обществената поръчка. Премахнато дърво ще се компенсира с 5 нови, като са предвидени растителни видове, които не са потенциално опасни, а съществуващите акации, които са, ще бъдат обозначени. Композицията на растителността е геометрична и следва основната алейна мрежа, като са предложени дървесно храстови групи с високи декоративни качества и колорит за постигане на интересни погледи и перспективи. Освен художествено-естетическа функция тя ще изпълнява прахозащитна функция и ще подобрява микроклимата на обекта.
