Стартира изграждането на Факултет по ветеринарна медицина към Медицинския университет в Плевен
Това е петото и най-ново основно звено в структурата на висшето училище, а първата копка се проведе на терена на ул. „Пиер Кюри“

Източник: Община Плевен
Факултетът ще бъде изграден върху незастроен и необлагороден терен в Плевен в имот с идентификатор 56722.659.78. Парцелът е с площ 22 454 кв.м.

Проектанти след обществена поръчка са „Лидерппроект“ и „Писарски дизайн“. Проектът ще включва: университетска болница с клиники за дребни животни, корпус с учебни зали и кабинети, сграда на деканат към факултет по ветеринарна медицина, зони за паркиране на автомобили, както и обществени зони за отдих и зелени площи с пейки, водно огледало, архитектурен елемент тип пергола с покритие соларни панели, с които ще се обезпечи нуждата за електричество на парковата среда, архитектурното осветлени и дежурно осветлени на сградите.

Сградите ще отговарят на изискванията да попадат в енергиен клас „А“ или с нулево или близко до нулевото потребление на енергия или с минимум 55% възобновяеми източници на енергия. Това условие ще бъде покрито веднъж с изграждането на фотоволтаична централа и с използването на термопомпи за отопление и охлаждане на помещенията в комбинация рекуператор. Ще се търси възстановяване на връзката с природата чрез по-големи остъклени пространства, връзка между средата вън и вътре, поддръжка на многофункционални озеленени площи и др. Ще се използват естествени материали като дърво, стъкло, камък.

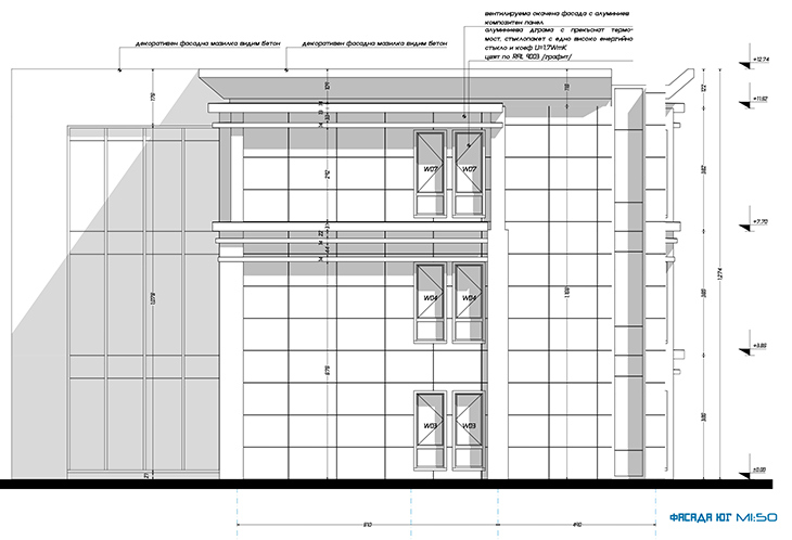
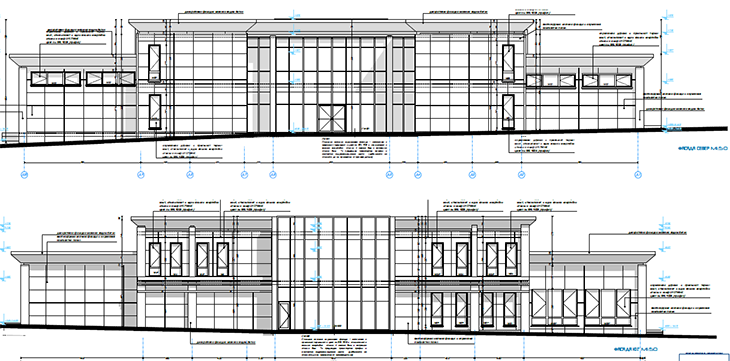
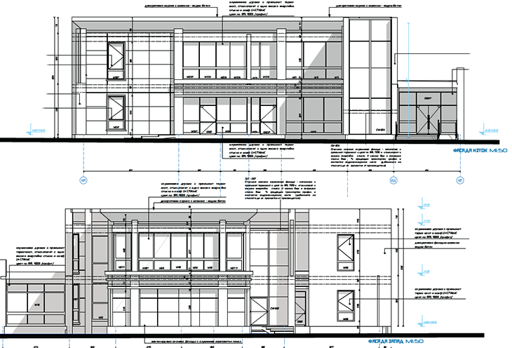
Учебен корпус

Учебен корпус

Учебен корпус

Учебен корпус

Деканат

Деканат

Деканат

Клиника за дребни животни

Клиника за дребни животни

Клиника за дребни животни
Изграждането на новия Факултет по ветеринарна медицина се реализира по проект "Единно здраве за Северозападен регион", финансиран по Програма "Развитие на регионите". Проектът се изпълнява съвместно с 21 партньори - общини, образователни и здравни институции и Министерство на здравеопазването. Общата стойност на финансирането за МУ – Плевен е 14 824 636 лв., от които: 12 217 165 лв. – безвъзмездна финансова помощ по Програма „Развитие на регионите“, от които 10 384 590 лв. европейско финансиране и 1 832 574 лв. национално съфинансиране. Съфинансирането от страна на МУ – Плевен е 2 607 470 лв. Новият комплекс за обучение на бъдещи ветеринарни лекари в Плевен трябва за бъде реализиран за 36 месеца и да приключи на 30 октомври 2028 година.

Изпълнител след обществена поръчка "Изпълнение на инженеринг на обекта е "АВ Билд" ЕООД.