Стартираха строителните дейности по Дома за стари хора в Ивайловград
Авторският надзор се изпълнява от Архитектурно студио "Бояна" ЕООД, а изпълнител е "Варт 2000" ЕООД

Проектът „Извършване на строителни дейности и доставка на оборудване и обзавеждане в дом за стари хора гр. Ивайловград“ се реализира по Националния план за възстановяване и устойчивост. В рамките на проекта са предвидени строително-ремонтни дейности за обновяване на сградния фонд и подобряване на енергийната ефективност, както и доставка на ново оборудване и обзавеждане.

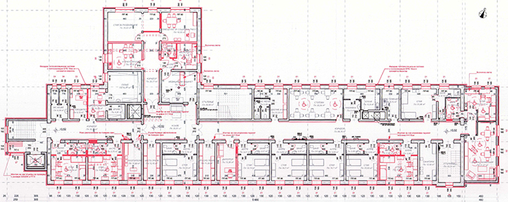
В началото на 2010 година сградата на общинската болница на улиците "Дунав" и "Бърза" спира да работи, като към днешна дава се използват само втория етаж (Дом за стари хора) и първи партерен етаж - като кабинети на лични лекари. Сутеренът и третия етаж не се използват. Обектът на проектната разработка е втория етаж, допълнителната пристройка (вход и вертикална комуникация) и перално помещение със съответните обслужващи помещения към него. Обектът представлява монолитна триетажна сграда с полувкопан сутерен. В дома за стари хора са разположени стаи за възрастните хора, кухня със столова, складови помещения, административни помещения и технически помещения.



