Строят Дневен център за пълнолетни лица с увреждания в Белоградчик
Сградата ще е готова след 9 месеца

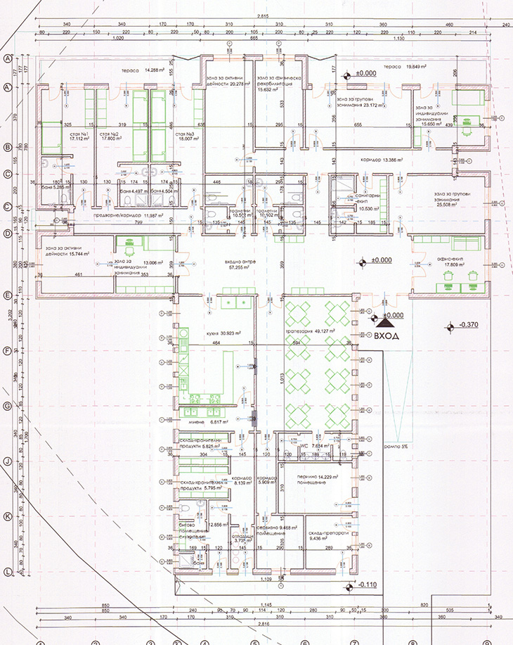
Центърът за специализирана подкрепа за лица с увреждания и техните семейства ще се намира в УПИ V-1564 в кв. 9 по плана на Белоградчик, с конкретно предназначение „за социални дейности“. Изпълнител след обществена поръчка е АВ БИЛД ЕООД.

Проектант в част "Архитектура" е арх. Димо Джоталов. Сградата ще е на едно ниво с „Т“-образна форма, като формите могат да се "прочетат" както в план, така и по фасадите. Отделните пространства и функционални отделения са подчертани като отделни паралелепипеди, като са прилепени. Това се вижда по фасадите на сградата, като освен с височина, те са подчертани и с различни цветове.

Габаритните размери на сградата са 30 на 24 метра и максимална кота било +4.40м. Разпределението на сградата е съобразено с изискванията, зададени от Министерство на труда и социалната политика. Всички указания и изисквания за вид, площ и достъп за помещенията са изпълнени с проекта.

Сградата ще е достъпна с обособен вход на изток, който ще е в непосредствена близост до обслужващия паркинг. Изградена ще бъде кратка рампа за преодоляване на двете височини на стъпала по 17 см. Входното фоайе ще е просторно и ще служи за голям вестибюл към отделните секции и помещения.

Сградата ще е изградена от стоманобетонни колони и греди-трегери. Покривърт е плосък, със стоманобетонна плоча на две нива. В някои части на сградата са нужни по-високи тавани. Покривът ще е ограден с повдигнати бордюри, като на ниските части бордюрът ще е допълнително свален, а при по-високите покриви бордовете ще са допълнително вдигнати, за да се получио разлика във височините на сградата по отношение на архитектурно-визуалното значение.

В същата поръчка е и изграждането на две социални-жилищни сгради за резидентна грижа за пълнолетни лица с деменция. Очаквайте подробности.