В силистренското село Айдемир ще бъдат изградени три сгради за резидентна грижа
Проектът се финансира чрез Механизма за възстановяване и устойчивост

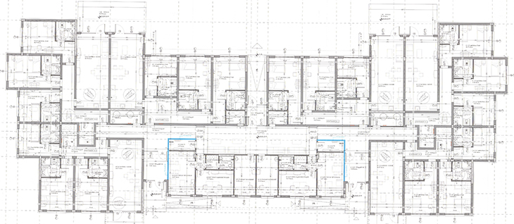
Проектант в част "Архитектура" е арх. Мария Милчева с изменения от арх. Добринка Митева. В част "Паркоустройство и благоустройство" проектант е ланд. арх. Даниела Гинчева. Единият Център за резидентна грижа за пълнолетни лица с физически увреждания с капацитет от 30 потребителя ще се намира откъм ул. „Лазурна“. В двора около сградата е оформена алейна мрежа в геометричен стил, с кътове за сядане и беседка. Включена е нова паркова мебел. Обособени са паркинг, като са предвидени и места за микробус/линейка, както и площи за зеленчукова и цветна градини, които ще се използват както от служители, така и от пациенти.



Към дневните помещения в новата сграда пред западната й фасада са оформени тераси, обособени чрез етонови кашпи. В тях е предложено засаждане на едногодишни цветя. Избраният вид е Tagetes patula, с летен цъфтеж от май до септември. Предложено е засаждане на 7 широколистни дървета и 7 иглолистни дървета.

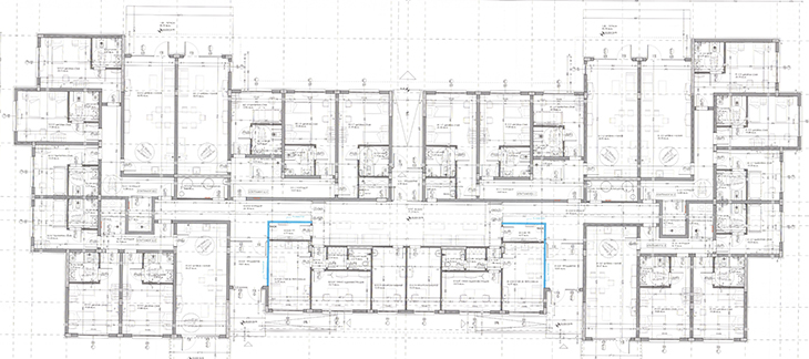
Другият Център за резидентна грижа за пълнолетни лица с физически увреждания с капацитет от 30 потребителя ще се намира откъм ул. „Майски ден“.



И за тази сграда са обособени площи за зеленчукова и цветна градини, а към дневните пред източната фасада са оформени тераси чрез бетонови кашпи - отново с Tagetes patula. Тъй като две от съществуващите дървета попадат в границите на новото застрояване, е необходимо тяхното премахване. Другото съществуващо дърво се запазва. Предложено е засаждане на 10 широколистни дървета и 13 иглолистни дървета.

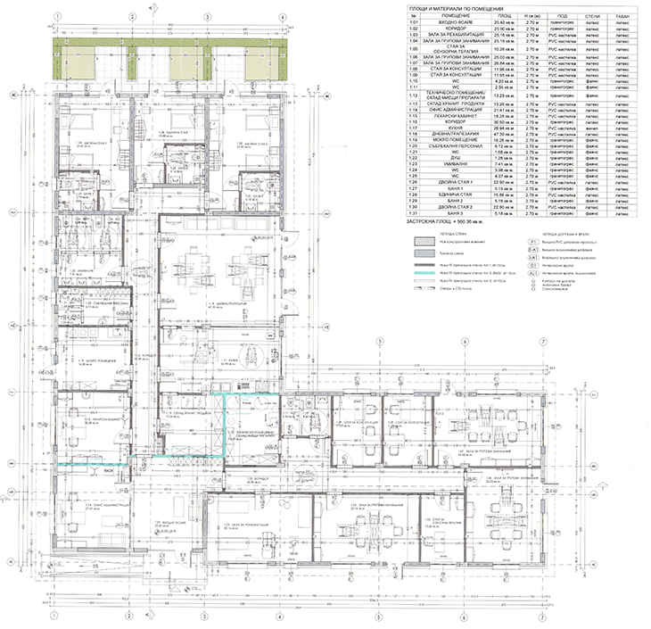
До двете сгради ще бъде изграден и Център за специализирана подкрепа за лица с увреждания и техните семейства, който ще предоставя комплексна подкрепа за лицата с увреждания и техните семейства. Оформянето на двора е подобно, а в източната част към спалните помещения са обособени външни градини, разделени една от друга с нисък жив плет. Оформени ще бъдат площадки с настилка от бетонови плочи и тревни площи.



Съществуващата дървесна растителност в имота се запазва. Предвижда се премахване само на 1 дърво – орех. Предложено е засаждане на 7 широколистни дървета и 7 иглолистни дървета.

Общият бюджет на проекта е 3 627 061 евро. Крайният срок за приключване на дейностите е 30 юни. Вижте повече в обществената поръчка тук.