Център по изкуствата ще има Природо-математическа гимназия в Хасково
Предвижда се разрушаване на съществуваща административна сграда

Община Хасково обяви обществена поръчка за изграждане на център по изкуствата в ПМГ “Акад. Боян Петканчин“ в имот с идентификатор 77195.725.70 в Хасково на ул. “Стефан Стамболов“ 2. Новият център е проектиран да бъде функционално и енергийно ефективно пространство. Проектант в част "Архитектура" е арх. Николай Лазаров.

Фасадите ще комбинират големи стъклени панели, метални елементи и топлоизолационни материали. Панорамните прозорци на залата за събития подчертават облика на сградата и осигуряват максимално естествено осветление. Основната облицовка ще бъде изпълнена с минерални мазилки с топлоизолационен слой, а в определени зони на фасадата са предвидени и декоративни дървени обшивки.

Визията на сградата включва праволинейни форми и геометрична яснота, които подчертават функционалния характер на обекта. Комбинацията от тъмни фасадни елементи и светли хоризонтални акценти създава усещане за динамика и контраст, като едновременно с това придава елегантност на сградата, казва проектантът. Използването на декоративни панели върху горния етаж, които съчетават дървени и метални елементи, добавя естетически акцент и подсилва идентичността на обекта. Тези панели служат не само като декоративен елемент, но и осигуряват частична сянка и визуална текстура.

Големите витрини на първия етаж позволяват проникване на естествена светлина, което подобрява вътрешната осветеност и създава визуална връзка между външното пространство и учебните зони. Големият черен панел, интегриран в фасадата на горния етаж, е проектиран за поставяне на надпис или лого. Пространствата около обекта ще са покрити с павирани настилки.

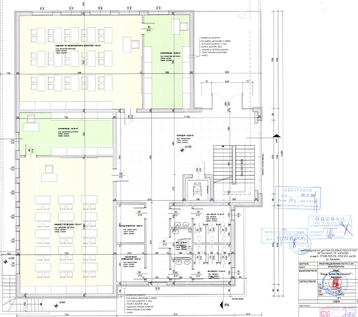
Сградата e на три нива – сутерен, първи и втори етаж. На първия етаж ще са разположени кабинети по изобразително изкуство и музика, както и обслужващи помещения и централно разположен коридор. Кабинетът по изобразително изкуство ще бъде в северната част на етажа. Към него е предвидено хранилище са съхранение на материали като четки, платна и други пособия. Кабинетът по музика с добра акустична изолация ще е разположен в западната част на етажа. И към него също е обособено хранилище - за музикални инструменти и озвучителна техника. Комуникационната зона на този етаж ще включва просторно и светло централно стълбище, което свързва всички нива на сградата, както и асансьор за трудноподвижни.

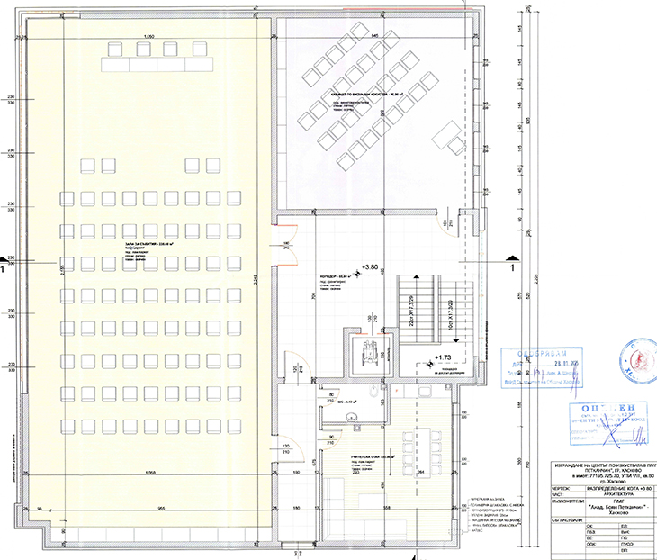
На втория етаж са предвидени зала за събития, кабинет по визуални изкуства и учителска стая. Кабинетът по визуални изкуства ще представлява просторно помещение, за което е осигурено максимално естествено осветление. Централно място на този етаж ще заема залата за събития, която ще предлага панорамен изглед към града чрез големи остъклени панели. Проектирана е с възможност за разделяне на пространството чрез мобилни преградни стени. Учителската стая ще включва работни места и зона за почивка.

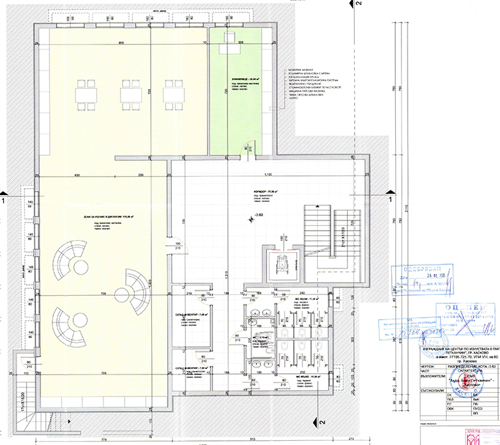
В сутерена са предвидени зона за релакс и общ склад за съхранение на училищно оборудване и материали. Интериорните решения залагат на светли и топли цветове, а кабинетите и залите ще са оборудвани с ергономични мебели, проектирани да отговарят на нуждите на различните възрастови групи.

Предстои сключване на Договор за предоставяне на безвъзмездна финансова помощ по Програма „Развитие на регионите“ 2021-2027. Проектът следва да се изпълнява в съответствие с екологичните цели и изисквания на Техническите насоки за прилагане на принципа за „ненанасяне на значителни вреди“, съгласно Регламента за Механизма за възстановяване и устойчивост.




Бъдещият Център по изкуствата в ПМГ „Акад. Боян Петканчин“ е проект от концепцията „Преодоляване на неравенствата в ЮЦР в периферни общини по направление Хасково-Харманли-Свиленград за преход към въглеродно неутрални, климатично устойчиви и социално-приобщаващи градове“, която Община Хасково изпълнява. Концепцията представя визията за развитие на Хасково и общините-партньори: Харманли, Свиленград, Маджарово и Симеоновград, и включва редица ключови проекти като пълно обновяване на МБАЛ Хасково, реставрация на Художествена галерия „Атанас Шаренков“, ремонт на Младежки център Хасково, изграждане на Астрономическа обсерватория от последно поколение и други.