Изграждат сграда за два вида социални услуги в Карнобат
Едната услуга е за две резидентни грижи за пълнолетни лица с деменция, а другата - за специализирана подкрепа за лица с увреждания и техните семейства

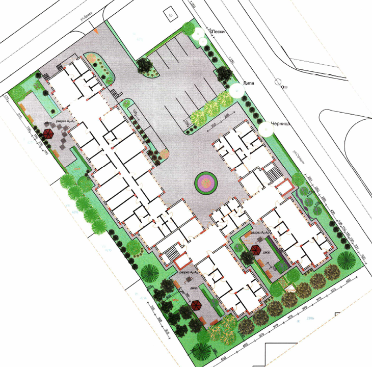
Основната цел на проекта е създаване на адекватни условия на живот и грижа за лицата от предвидения за закриване Дом за пълнолетни лица с деменция в с. Огнен, чрез изграждане на две резидентни услуги и един център за специализирана подкрепа на ъгъла на улиците "Драва" и "Страцин" в Карнобат. Проектант е арх. Валентин Вълчев. Ландшафтен архитект е Анна Бакалова. Сградата е за трите социални услуги и стопанската зона. Подходът - автомобилен и пешеходен, е възможен от улица „Драва". Най-близо до влизането в имота, предвид функцията, е разположен центърът за специализирана подкрепа, а по-навътре - двете резидентни грижи и стопанският блок.


Центърът за специализирана подкрепа за лица с увреждания и техните семейства ще е за 15 потребители. В него ще са разположени: входно фоайе с гардероб за потребителите и изход към двора, два офиса (единият с визуална връзка с фоайето), кухня-трапезария, която ще се ползва и за трудова терапия, помещение за персонала с баня, зала за лечебна физкултура, три зали за трудова терапия, две зали за индивидуална работа, зала за сензорна терапия, мокро помещение за битови дейности, зона за заместваща грижа с две помещения с по две легла с бани и едно помещение с едно легло с достъпна баня, оразмерена за разполагане на лифтер. Спалната зона ще е със самостоятелен вход, свързан с останалата част от центъра. Предвид наклона на терена, в основния вход ще се влиза със стъпала. Предвидена е стълбищна платформа за лица с инвалидна количка. Общата площ на центъра е 486 м2.

Двете резидентни грижи са за по 15 потребители и са с идентично съдържание. Решени са на три етажа. На първия етаж са разположени: фоайе с кът за посещения на близки, което ще се ползва и за общи мероприятия и с изход към дворното пространство, офис с визуална връзка с фоайето, служебно помещение за чистачен и друг инвентар, стълбище, асансьор и жилищна част. На втория етаж ще са разположени: фоайе с кът за посещения на близки, два офиса, помещение за персонала с баня, техническо помещение и жилищната част. На третия етаж ще са разположени: фоайе с кът за посещения на близки и жилищната част, която ще съдържа: дневна-трапезария с кухненски бокс, мокро помещение, две спални за по един човек с обща баня, една спалня за един човек с достъпна баня и спалня за двама души с баня. За по-добро взаимодействие на персонала с обитателите, спалните са разположени по периферията на дневната с директни входове от нея, като им е осигурено благоприятно изложение за ослънчаване. Между двете резидентни грижи, в едноетажно тяло, за получаване на готовата храна от кухненския блок са разположени разливни и умивални, свързани с главните фоайета. Общата РЗП на двете резидентни грижи е 1343 м2 - по 45 м2 на потребител.

Стопанската зона е на един етаж и ще съдържа пералня със самостоятелен вход, складове за употребявано и чисто бельо и перално помещение, хранителен блок с отделен вход, зона за хладилни съоръжения, склад за сухи продукти, помещение за чистачен инвентар, помещение за персонала с баня, помещение за дневен разход, кухня и експедиция на готовата храна. Кухнята е оразмерена да приготвя храна за 45 човека. Готовата храна ще постъпва в разливните на двете резидентни грижи.

Поради голямата естествена денивелация на терена в проектната вертикална планировка са предвидени подпорни стени по някои от границите на имота. Към улица „Страцин" има съществуваща подпорна стена.

Проектирана е вътрешна обслужваща улица, осигуряваща автомобилен достъп до всеки вход на социалните услуги и стопанските входове. Предвидени са паркоместа за 9 леки автомобила, в т. ч. - едно достъпно за хора с увреждания и едно за микробус. Пред всяка от услугите е ситуиран малък двор за потребителите.

Стойността на проекта е 4 570 223 лв., от които 3 808 519 лв. безвъзмездна финансова подкрепа по Механизма за възстановяване и устойчивост и 761 703 лв. като национално съфинансиране. Срокът за изпълнение е до 30 юни 2026 г. Изпълнител след обществена поръчка е "Партньори-А.Т." ЕООД.