Най-после започна изграждането на социален център "Къща на децата" в София
Още през през 2019 година конкурс за идеен архитектурен проект спечели Another studio

Източник: Район "Възраждане"
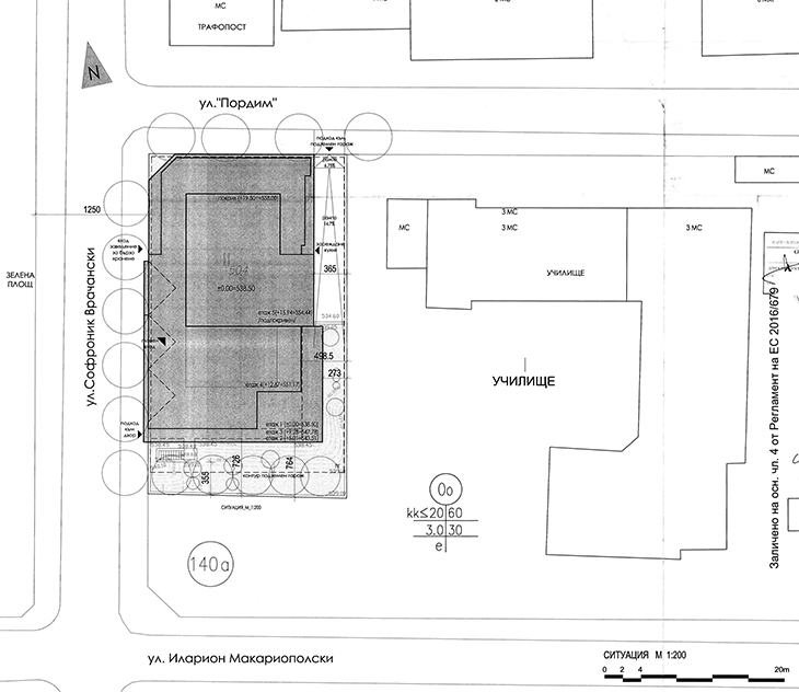
През 2016 година Сдружение „Национална мрежа на децата“ започна развитието на проекта за изграждане на Къща на децата на територията на Столична община, като с помощта на две фондации купи парцел от 825 квадратни метра в район "Възраждане" на ул. „Софроний Врачански" 44 до 46. ОУ „Константин Фотинов“.

През 2019 година конкурс за идеен архитектурен проект спечелиха арх. Андрей Андреев и арх. Петя Николова от Another studio (вижте обяснителна записка за проекта тук). Основното изискване към участниците в конкурса беше Къщата да съчетава модерна визия с функционалност и висока енергийна ефективност. Тя ще бъде на 5 етажа и полуподземен, като ще бъде съобразена с всички изисквания, свързани с мобилността и достъпността. Вижте подробности за историята на проекта и самия проект тук.

В къщата ще бъдат осигурени условия за учене, срещи, спорт и игри на деца, семейства и млади хора, които да развиват практически умения по теми като финансова грамотност, здравна култура, екология и други. Предвидено е центърът да бъде достъпен и за хора от уязвими групи. Ще има и подкрепа за млади хора, които правят първите си стъпки към работа след излизане от приемна грижа или институции за деца.

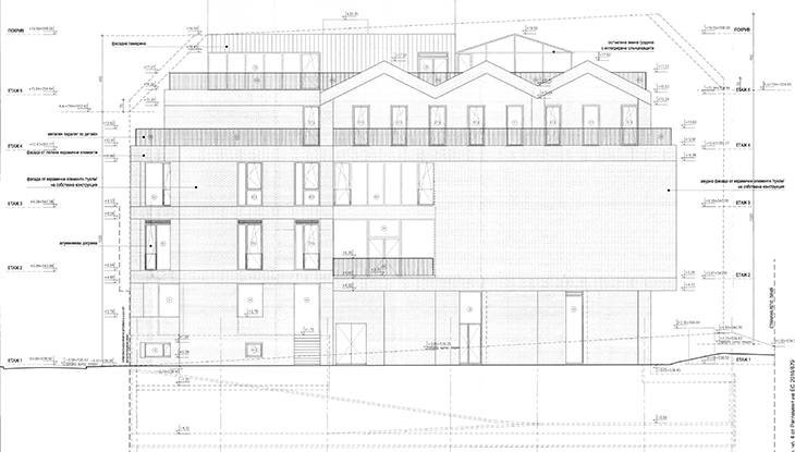
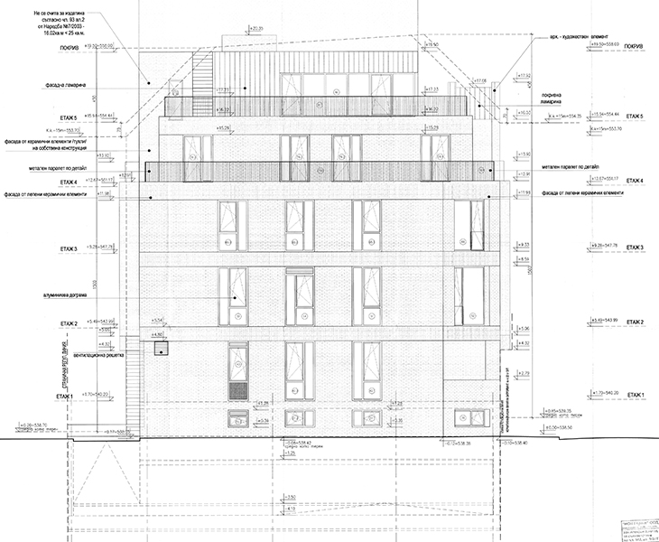
Фасада запад

Фасада изток

Фасада юг

Фасада север

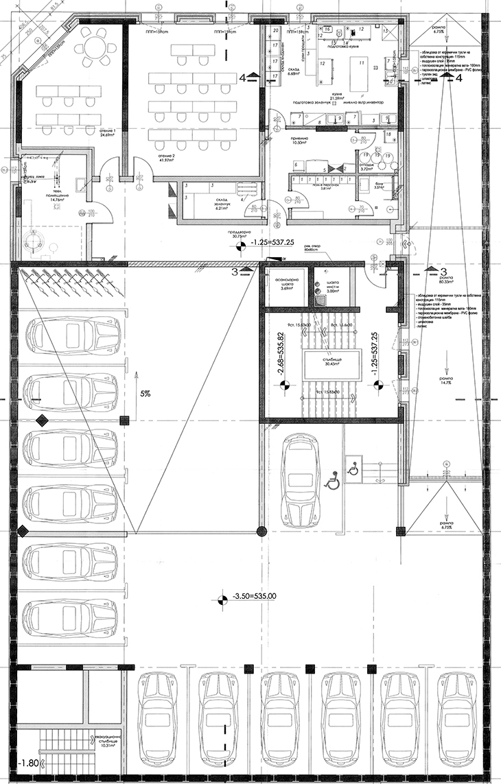
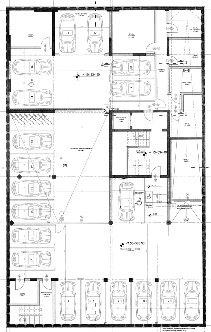
Полуподземен

Сутерен

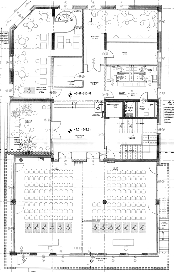
Първи етаж

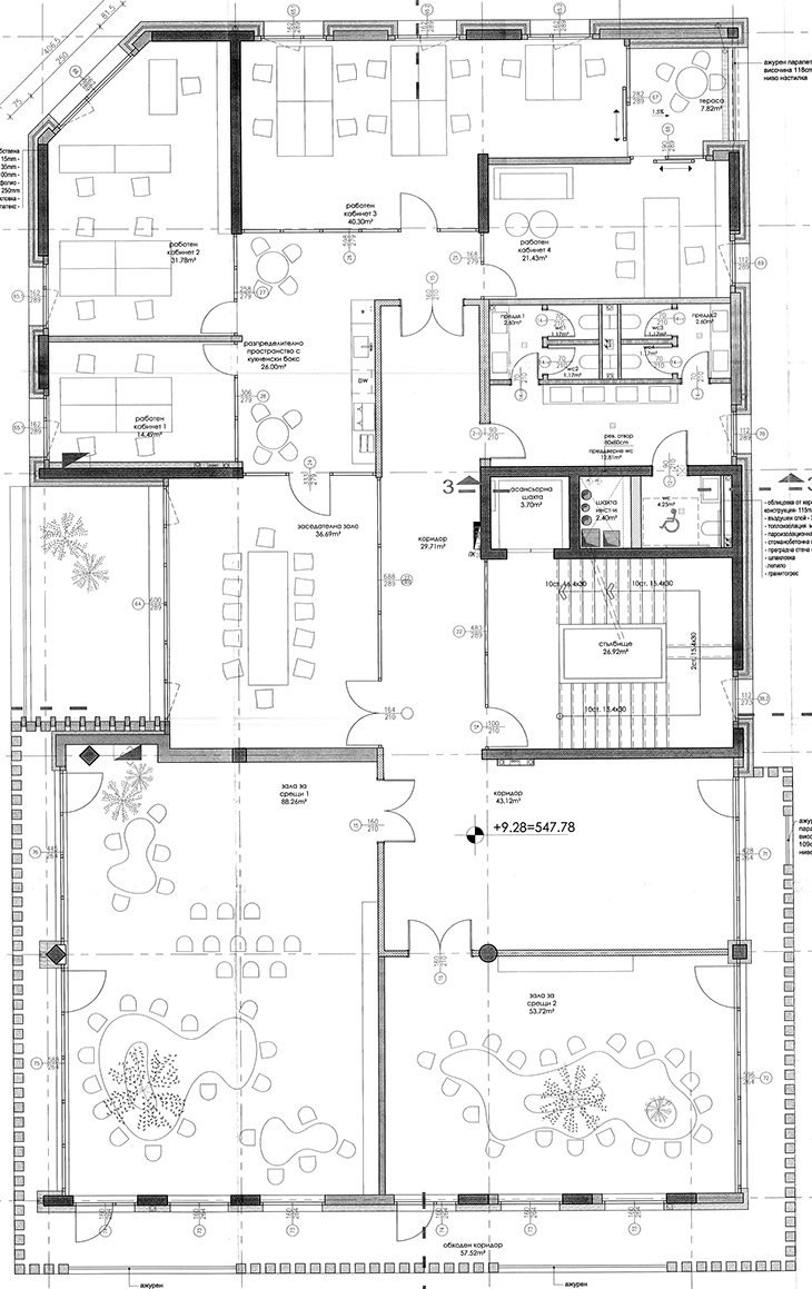
Втори етаж

Трети етаж

Четвърти етаж
В края на миналата година Национална мрежа за децата обяви процедура за избор на изпълнител чрез публична покана, където може да изтеглите подробности за работния проект.

Паркоустройствен проект - проектант ланд. арх. Маруся Нокова
Центърът се финансира с европейски средства по програма „Развитие на регионите“. За изграждането му са осигурени малко над 5 млн. евро. Срокът за строителство е 36 месеца.