Ще обновят Детския летен център за култура и изкуство в Тополовград
Той се намира в прилежащата територия на читалище „Св. св. Кирил и Методий-1894“ с обща площ от 1 350 квадратни метра

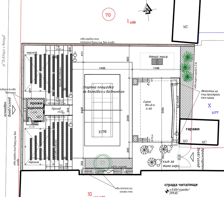
Проектант е ланд. арх. Деница Денева. Предмет на проектиране е реконструкция на зоната за събития/лятно кино. В този имот попадат гараж, прожекционна и две складови малки постройки, като не се предвижда ремонт на гаражите, а складовите постройки се премахват. Ще се ремонтира само прожекционната, което включа подмяна на дограма, измазване на фасадата, нови покривни покрития, улуци и водосточни тръби. Предвижда се на гърба на западната фасада да бъдат оформени две кашпи със система за покривно озеленяване. Ще се ремонтират металните стъпала, ще бъде подменен парапетът и стълбите ще бъдат странично затворени с перфорирана ламарина. Вътре ще има боядисване, шпакловане и полагане на теракот. Предвидено е ново оборудване и обзавеждане.

Ситуационно решението в основната си част е съобразено със съществуващото. Ще се реконструира сцената и ще бъде изградена покривна конструкция над нея. Запазват се спортната площадка и трибуните, които ще бъдат ремонтирани. На североизток се предвижда разполагане на маса за тенис, а от югоизток - за тихи игри на открито. Ще се ремонтира настилката и ще бъдат изградени перголи в зоната с места за зрители. В имота ще бъде премахната една лавровишна, а при проектирането са търсени видове с целогодишен декоративен ефект и характерни екологични изисквания за фитогеографската област на обекта. Като цяло е предвидено практично и естетично озеленяване с минимална поддръжка.

Предвижда се в детския летен център да се организират концерт за официалното откриване, ателиета на открито (за рисуване на тема „Природа” и изработване на сувенири от отпадъци), спектакли с еко послание на три езика (български, турски и английски), уроци на екологична тема с видеозаписи на открито за природни забележителности от флората и фауната на Тополовград и на турската община Буюккаръщъран, партньор в проекта. Предвижда се още съвместен концерт с участието на детски и училищни певчески и танцови формации от двете общини, както и българското издание на Еко фестивала „Зелени усмивки“, което ще стартира като ново събитие в културния календар на Община Тополовград в рамките на проекта.
Детският летен център ще се реализира по ПРОЕКТ ”GREEN SMILES”, ПРОГРАМА INTERREG VI-A IPA BULGARIA-TÜRKIYE. Общата стойност на проектното предложение е 997 546,24 евро, като за Община Тополовград са предвидени 498 218 евро. Начинът на възлагане е Договаряне без предварително обявление.