След неуспешен първи опит и голямо забавяне започна ремонт на емблематичния "Гранд хотел България" в столицата
През 2019 година беше обявено, че се предвижда запазване на фасадата и на оригиналната функция на всички интериорни пространства

Снимка: Bulphoto
Според техническия ръководител на ремонта на "Гранд хотел България" Николай Димитров, хотелската част ще бъде преустроена и обновена. Фасадата на сградата, която е паметник на културата, ще бъде почистена. В интериора ще има редица подобрения. "Единственото, което ще сменим, е дървената конструкция на покрива, тъй като тя не подлежи на възстановяване", казва Димитров за Dir.bg.

Снимка: Bulphoto
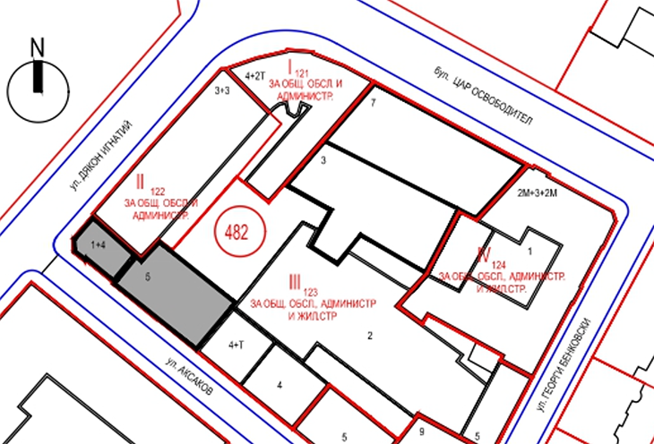
Първият опит за ремонт на сградата беше през 2017 година, но беше преустановен, тъй като липсваше необходимото съгласуване. През 2019 година беше заявен проект за консервация, реставрация, адаптация, основен ремонт и реконструкция на хотелския комплекс "Гранд хотел България", собственост на бизнесмена Мирослав Печев. Разрешението за строеж е влязло в сила на 9 юни 2021 г. По проекта има становище от НИНКН. Вижте границите на строителната площадка:

Припомняме, че през 2017 година собственикът на "Гранд хотел България" купи сградата на бившето емблематично кафене до централата на ББР и съседния парцел до зала „България" (бивш двор на хотел „България"), а през 2019 година съобщи, че има намерение да възстанови и надстрои някогашното кафене и да застрои парцела отдясно с цел създаване на апартаментен хотел с обществена функция на първия етаж. През 2021 година беше представен идейния проект, като плановете обаче изискваха спасително археологическо проучване на терена. Разрешение за строеж за такова проучване е влязло в сила през април 2022 година. Според "Свободна Европа" през 2023 година Министерството на културата одобрява проекта с редица изисквания. Засега официална информация за развитие по него няма.
